| Акционный товарда | АртикулK440920 | Вариантпанель смыва белая глянцевая |
| Коллекция панели смываTECEloop 2.0 | Панель смывабелая глянцевая | ПроизводительTECE |
| С застенным модулемда | Страна-производительГермания | Гарантия10 лет |
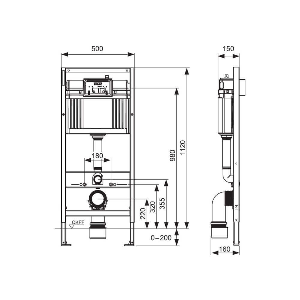
Комплект TECEbase 2.0 для установки подвесного унитаза с панелью смыва TECEloop
Особенности:
- Бачок не нужно открывать во время строительных работ
- Улучшенная панель защиты от брызг
- Быстрая сборка easy fit для панелей смыва
- Можно модернизировать для унитазов с функцией биде
- Оптимизированный держатель канализационного отвода
- Прочный резервуар на 10 л — воды хватает для немедленного дополнительного смыва (без ожидания)
- Акустическая группа I в соответствии с DIN 4109 «Звукоизоляция в зданиях»
- Выдерживает нагрузку 400 кг
- Удовлетворяет требованиям европейского стандарта по бачкам DIN EN 14055
Простой, надеждый и быстрый монтаж туалетного модуля TECEbase обеспечивают:
Заливной клапан F10
Предварительно смонтированный заливной клапан с 3-ходовым угловым вентилем для промывки
Промывка системы водоснабжения во время наладочных работ с помощью нового 3-ходового углового вентиля повышает эксплуатационную надежность системы.

Заливной клапан F10
Соединение без уплотнения

Соединение без уплотнения
У арматуры для соединения бачка с водопроводом наружная резьба 1/2", и она совместима с адаптером быстрого соединения.
Бачок TECEbase
Бачок TECEbase поставляется полностью собранным и запечатанным, и его открывают только на завершающем этапе установки. Цельный грязеотражатель панели защиты от брызг препятствует проникновению грязи, зажимные направляющие упрощают открывание и закрывание панели защиты от брызг.
Направляющие для толкателей и увеличенный кабельный ввод для электроники облегчают монтаж механических и электронных панелей смыва

Бачок TECEbase
Y-образные фиксаторы

Y-образные фиксаторы
Держатель канализационного отвода расположенный на нижней поперечине облегчает присоединение сливной трубы к модулю. Y-образные фиксаторы в держателе канализационного отвода улучшают фиксацию и предотвращают скручивание смывной трубы.
easy fit
Это технология быстрого монтажа панели смыва!
Панель смыва устанавливается за один прием. Не нужно ничего регулировать или измерять.
Вставьте винты, протолкните их и затяните.
Монтажная рамка уже прочно закреплена на панели защиты от брызг.
Теперь просто вставьте толкатели и закрепите их на месте, повернув на 45 градусов

easy_fit
| Акционный товар | да |
|---|---|
| Артикул | K440920 |
| Вариант | панель смыва белая глянцевая |
| Коллекция панели смыва | TECEloop 2.0 |
| Панель смыва | белая глянцевая |
| Производитель | TECE |
| С застенным модулем | да |
| Страна-производитель | Германия |
| Гарантия | 10 лет |
| Коллекция | TECEloop 2.0 |
| Материал | пластиксталь |
| Назначение | для унитаза |
| Поверхность | глянцевая |
| Тип | инсталляция |
| Управление | нажимное |
-
Нет отзывов о данном товаре.
-
Еще не было вопросов