
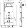
Инсталляция Jacob Delafon для унитаза, ширина 500 мм, без клавиши смыва (E24156-NF)
18 240 ₽
Инсталляция Jacob Delafon для унитаза, ширина 500 мм, без клавиши смыва (E24156-NF)
Характеристики
Артикул краткийE24156NF | БрендJacob Delafon | Система сливаДве кнопки (режим эконом) |
Высота упаковки, см109 | Высота, см115 | Гарантия10 лет |
Глубина, см12,6 | Длина упаковки, см12,6 | Длина, см12,6 |
Краткое описание
Инсталляция для подвесного унитаза Jacob Delafon E24156-NF со смывным бачком, с двойной системой смыва
Нашли дешевле?
Описание
Функциональность:
Назначение: установка подвесного унитаза.
Запорный клапан возможно установить с левой и с правой стороны.
Возможность установки в маленькие ванные комнаты благодаря тонкому бачку - 12,7 см.
Простая установка и легкий доступ для технического обслуживания.
Конструкция:
Рама: стальной профиль с антикоррозийным покрытием.
Высота рамы: до 115 см.
Нагрузка: до 400 кг.
Регулируемая высота ножек: 0 до 200 мм.
Полипропиленовый бачок защищен от конденсации.
0,4 литра экономии воды благодаря системе задержки набора воды.
В комплекте поставки:
Монтажная рама.
Смывной бачок.
2 комплекта крепления.
Технические характеристики Инсталляция Jacob Delafon для унитаза, ширина 500 мм, без клавиши смыва (E24156-NF)
Основные
Артикул краткий | E24156NF |
---|---|
Бренд | Jacob Delafon |
Система слива | Две кнопки (режим эконом) |
Высота упаковки, см | 109 |
Высота, см | 115 |
Гарантия | 10 лет |
Глубина, см | 12,6 |
Длина упаковки, см | 12,6 |
Длина, см | 12,6 |
Материал | сталь/пластик |
Назначение | Для подвесных унитазов |
Объем упаковки, м3 | 0.14 |
Режим смыва | Два режима слива |
Страна | ФРАНЦИЯ |
Тип | Инсталляция для унитаза |
Управление | Механическое |
Цвет | Черный |
Ширина, см | 50 |
Отзывы
Вопросы и ответы
-
Еще не было вопросов
Вы смотрели